
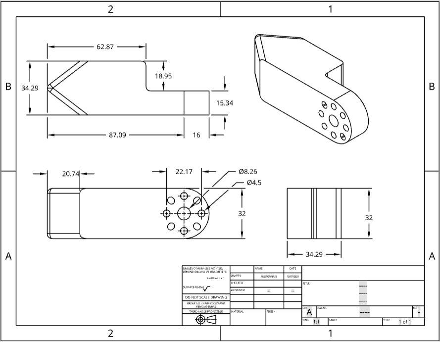
This image is a computer-aided design (CAD) drawing of our specimen claw for this season’s challenge. We attached two to our robot. They rotate on servos to come together to pick up specimen off the wall, then pull down to attach the specimen to the submersible, and finally releasing it to score.